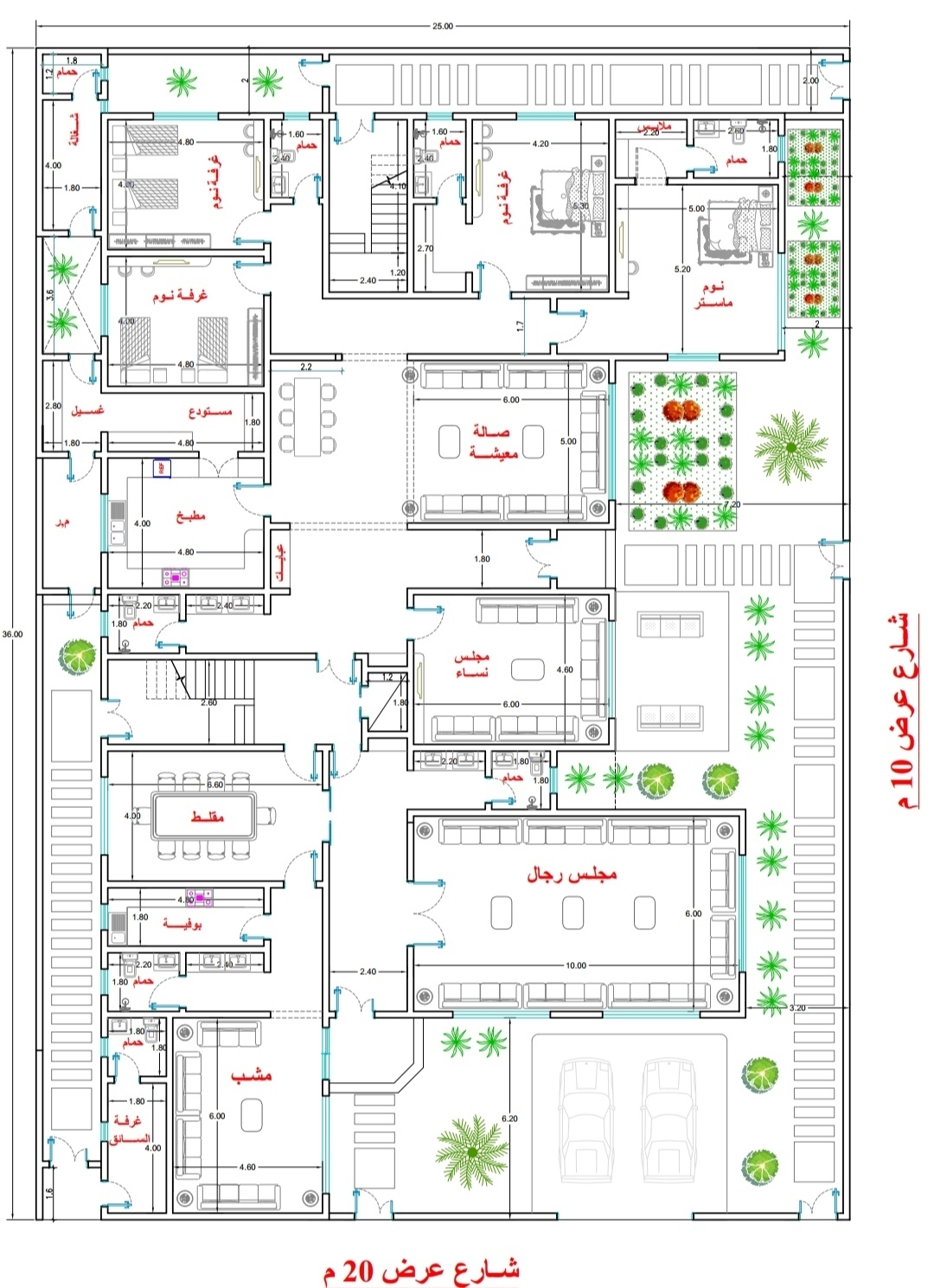
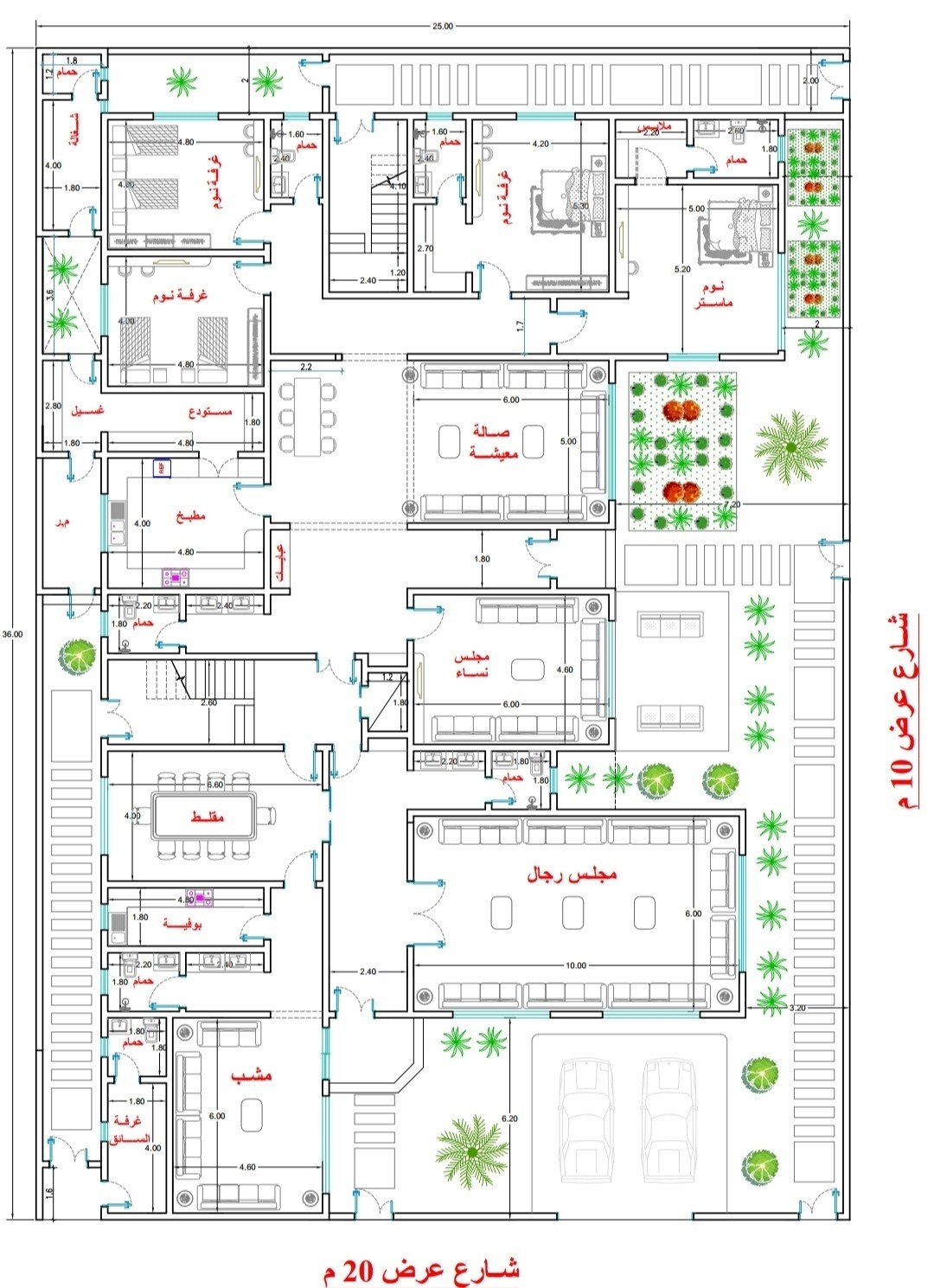
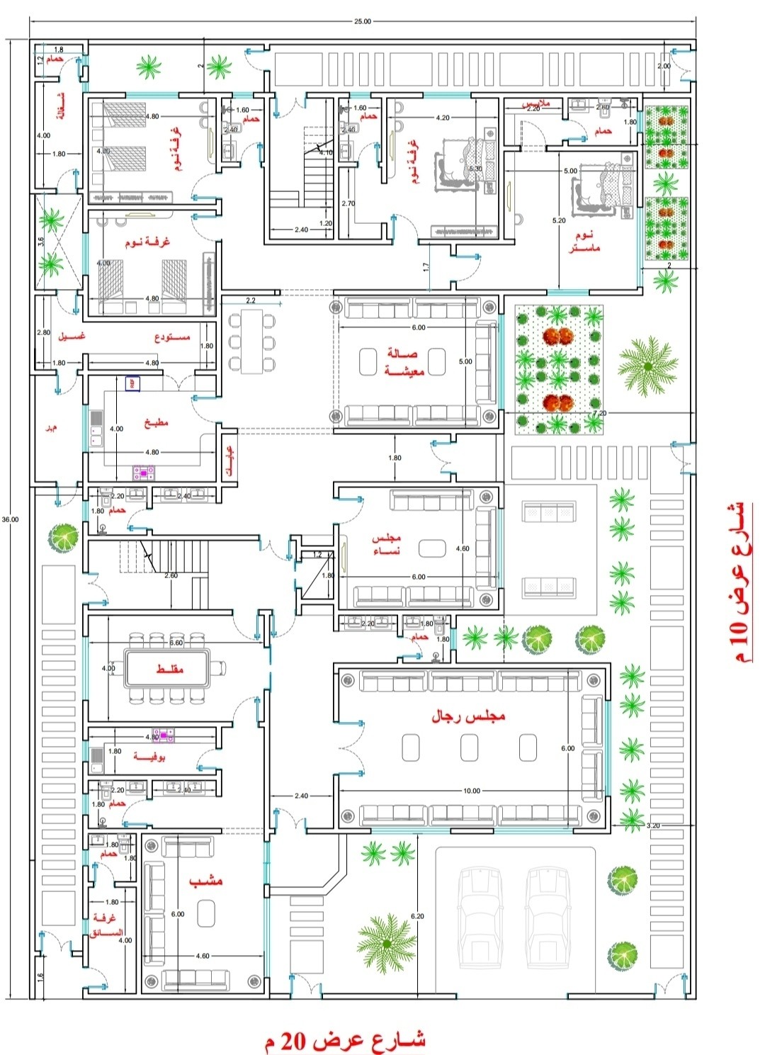
مخطط دور ارضي لفيلا بمساحة 750 متر مربع
يحتوي المخطط على ٣ اقسام :
* قسم الضيافه ويتكون من المجالس وصالة الطعام (المقلط)
* قسم الخدمة ويتكون من الصالة والمطبخ وملحقاته
* قسم السكن ويتكون من ٤ غرف نوم بكامل ملحقاتها بما فيها غرفة نوم ماستر
* خدمات اخرى مثل المشب ، غرفة السايق ، غرفة الخادمة ، وغيره
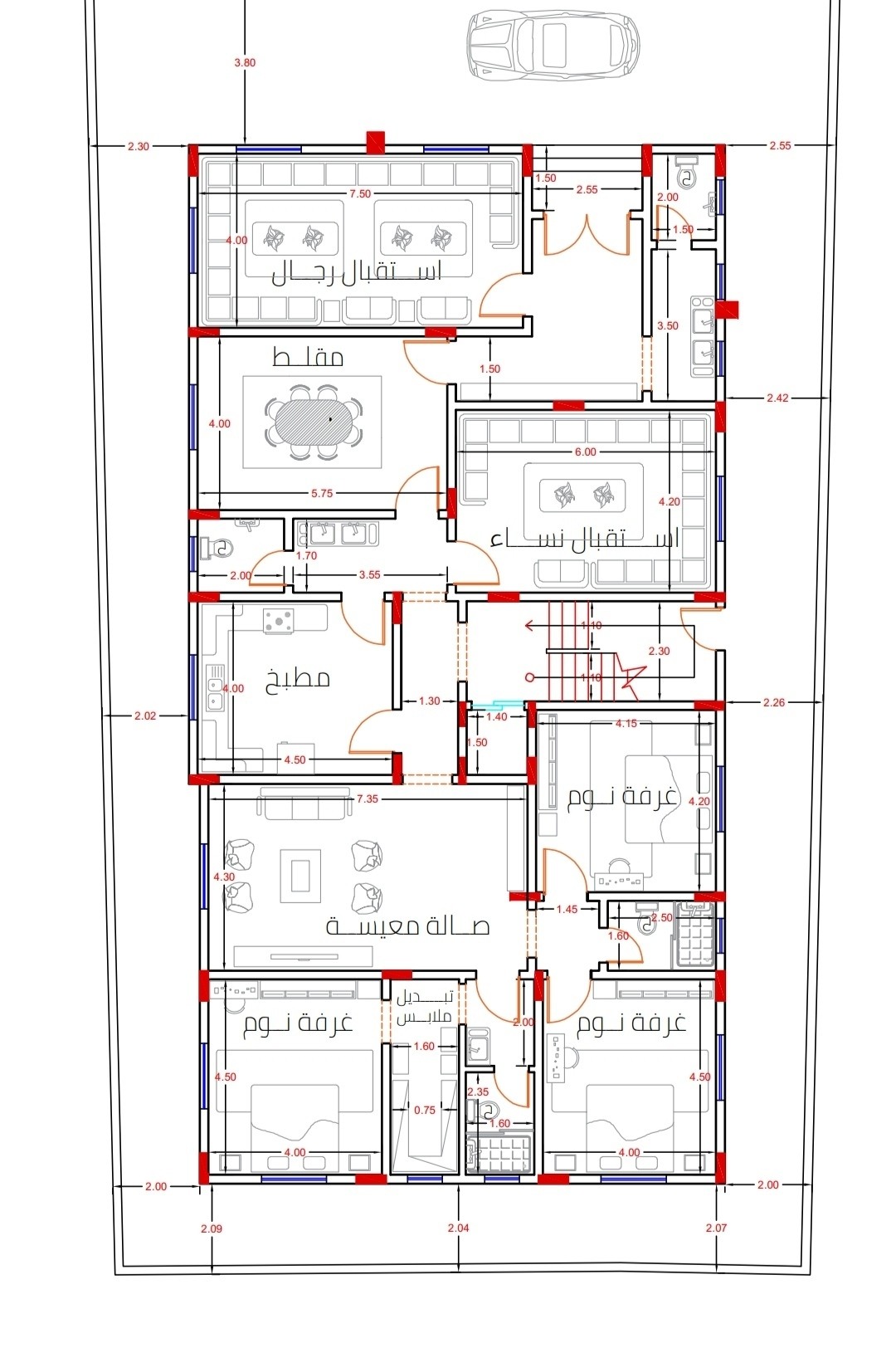
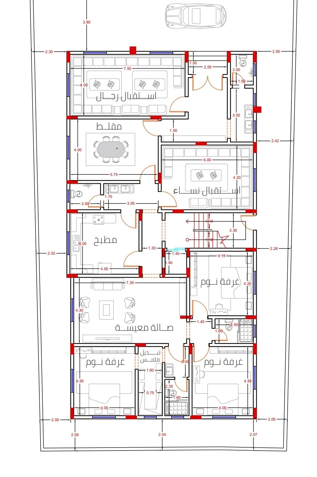
مخطط دور ارضي لفيلا بمساحة ٥٥٠ متر مربع
يحتوي المخطط على ٣ اقسام :
* قسم الضيافه ويتكون من المجالس وصالة الطعام (المقلط)
* قسم الخدمة ويتكون من الصالة والمطبخ وملحقاته
* قسم السكن ويتكون من ٣ غرف نوم بكامل ملحقاتها بما فيها غرفة نوم ماستر
مخطط دور ارضي لفيلا بمساحة ٤٥٠ متر مربع
يحتوي المخطط على ٣ اقسام :
* قسم الضيافه ويتكون من المجالس وصالة الطعام (المقلط)
* قسم الخدمة ويتكون من الصالة والمطبخ وملحقاته
* قسم السكن ويتكون من ٢ غرف نوم بكامل ملحقاتها بما فيها غرفة نوم ماستر