8
مسقط متكرر للبرج السكني (تراجع في الكتلة)
3
مسقط أساسات لمبنى سكني
2
مقطع تنفيذي في مبنى سكني
9
مقطع في البرج التجاري السكني
4
مسقط تنفيذي للتسقيف (هوردي)
6
مسقط الطابق الأول في مبنى المول والبرج السكني
7
مسقط متكرر لبرج سكني
1
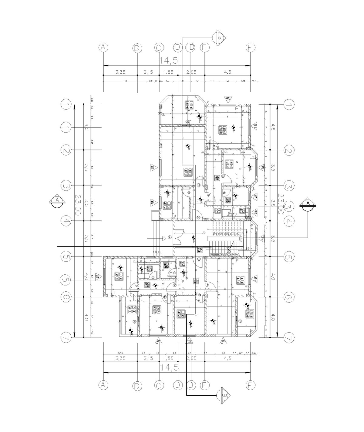
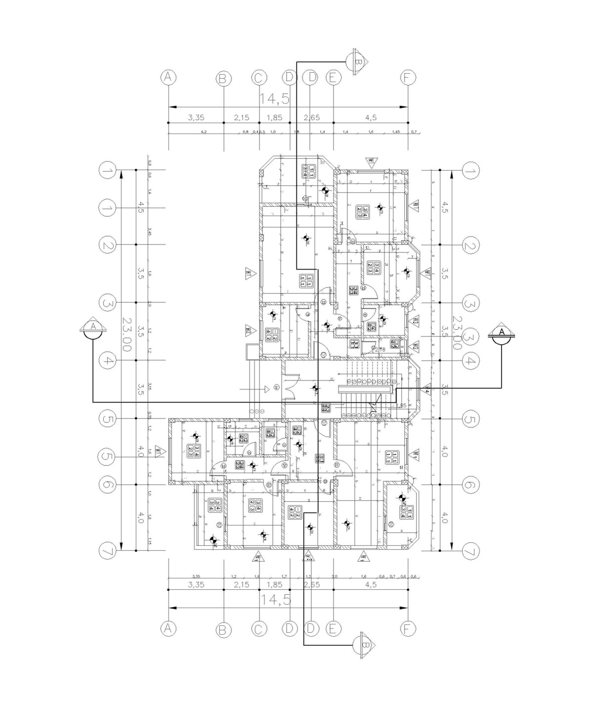
مسقط تنفيذي لبناء سكني مع كافة التفاصيل
5
مسقط ارضي لمبنى مول مع برج سكني